手机版
手机扫一扫打开网站

扫一扫打开手机网站

公众号
微信扫一扫关注我们

微信扫一扫关注我们

帖子详情

相关文章推荐
  • 花艺师招募

    花艺师招募

    2026-03-07
  • 招募发型模特

    招募发型模特

    2024-06-29
  • 【远程兼职】今天仅需40人,男女不限!
  • 20-25元/时,有电脑即可做的线上兼职!批改作业~
  • 请问一下有没有摄像师有南充嘉舟丽港的航拍素材,有报酬
  • 本科学历可报!图文数据标注,月入4-6千!在校大学生线上可做~
  • 招募授课老师 每周只需授课3.5天保底年薪12w-18w,周末住宿打车报销~
  • 80-200元/时,n次方教育招募精品课堂授课教师,保底年薪12w-18w,有打车费用报销,周末上课酒店住宿全包!
  • wx视频号 发视频、发图文
  • 杭州晟纬文化艺术工作室
  • 擁有多年經驗!!因車禍腳傷而轉職接案
  • 设计兼职 工资周结,100-300元/单提成!
  • 市桥街有现场招聘会
  • 需要一名女演员
  • 【设计兼职】工资周结,100-300元/单提成!
  • 北京互勉拍摄中式证件照➕美式证件照
  • 线上兼职,内容发布简单,每天10到20分钟,可月入500+
  • 修改错字,日结
  • 你好我们机构是教育局属下的正规教育机构。现正在招能长期的兼。职助教老师24年2月20日∽24年7月中小学生放假止。
  • 个人自由设计师,可约稿
  • 超简单两个兼职,手机也可操作!
  • 全国收  拍摄地:杭州或者广州
  • 北京跟组

    北京跟组

    2024-01-21
  • 招募线上分销代理,时间地点不限,自己利用空闲时间赚零花钱!!
  • 广州8号替身fitting
  • 有类似这种感觉的演员私我发资料
  • 悬疑片招募演员
  • 【线上兼职】英语作文老师招募!120-250元/千单词,长期招募!
  • 找人做这种图

    找人做这种图

    2023-12-12
  • 花卉摄影技巧,你知道多少? [植物]

    花卉摄影技巧,你知道多少? [植物]

    

    GaZi 实习影

    影值: 77 银子: 15

    2020-7-1 12:45:14 | 显示全部 返回 收藏收藏

    花卉摄影的构图是拍摄者为了表现作品的主题思想和美感和效果,在一定的时间、空间,安排和处理花卉和其他物体的关系和位置,将个别或局部的形象组成一个艺术的整体。构图的精湛程度直接关系到一幅作品意境的高低,故而构图要具有审美性。

    作为拍摄者,要善于观察大自然并将这种视觉感受表现在画面上。将构思中已典型化的花、人或其他景物加以强调、突出,舍弃一般的、表面的、烦琐的、次要的东西,并恰当地安排陪体,选择环境,使作品高于现实生活,以增强艺术效果。

    无论是拍摄哪一个种类的花卉,构图的好坏将直接影响画面的美感,摄影构图的画面设计最重要的一点就是保证构图的均衡美。一幅画面在一般情况下应该是均衡的、稳定的,使人感到安定、和谐、完整。

    其实构图就是处理好主体在画面的位置和地位、陪体在画面的地位和作用、环境对烘托主体的作用、画面空白的留取、 画面要达到整体的均衡这五点,那结合摄影实践,今天我们就来谈谈花卉摄影的构图方式有哪些吧~

    1.黄金分割构图
    黄金分割构图具体可以分为黄金分割线、黄金矩形和黄金螺旋,九宫格也是黄金分割的衍生,我将它也归为黄金分割构图。
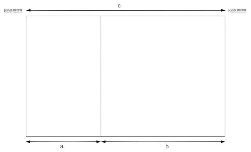
    黄金分割法,就是把一条直线段分成两部分,其中较小部分与较大部分的比值等于较大部分与全部线段的比值,如右图所示,a/b=b/c,其中比值约为0.618,这种比例也称黄金律。

    花卉摄影技巧,你知道多少?-1.jpeg

    这是基本的黄金分割方式,又衍生了黄金三角与黄金螺旋。

    花卉摄影技巧,你知道多少?-2.jpeg

    摄影构图中,可以用概略方法,在画面画井字,将画面分成9个相等的方块,称为九宫格,直线和横线相交的4个点称为黄金分割点。在拍摄花卉时,可以将花卉主体放在这些视觉交叉点上。

    花卉摄影技巧,你知道多少?-3.jpeg

    2.对称式构图
    对称式构图可以上下对称也可以左右对称,或者上下左右都对称,花朵的形态图案很多都是对称性的,如下图所示,这种极其对称的花的形态图案又可以看作放射性构图,具有视觉冲击力。

    花卉摄影技巧,你知道多少?-4.jpeg

    3.线性构图
    线性构图主要有对角线构图、曲线构图、平行线构图、斜线式构图、放射式构图等,是通过一些有规律的线性排列组合成作品的构图方法。

    对角线构图
    将主体安排在对角线上,能有效利用画面对角线的长度,同时也能使陪体与主体发生直接关系,使构图显得活泼。

    花卉摄影技巧,你知道多少?-5.jpeg

    曲线构图
    曲线构图画面上的景物呈S形或螺纹形曲线的构图形式,具有延长、变化的特点,使画面看上去更生动,产生优美、雅致、协调的感觉。
    花卉摄影技巧,你知道多少?-6.jpeg

    平行线构图
    拍摄主体位于相互平行的区域内,平行线可以有任何角度,有疏有密。
    花卉摄影技巧,你知道多少?-7.jpeg

    放射式或向心式构图
    放射式构图以主体为核心,呈向四周扩散、放射的构图形式。有开阔、舒展、扩散的作用。

    向心式构图的主体处于中心位置,而四周景物呈向中心集中的构图形式,能将观者的视线有效地引向主体中心,并起到聚集的作用,具有突出主体的鲜明特点,但有时也可以产生压迫中心、局促沉重的感觉。

    花卉摄影技巧,你知道多少?-8.jpeg

    斜线式构图
    包含立式斜线和平式斜线两种,斜线在画面中起引导作用。

    花卉摄影技巧,你知道多少?-9.jpeg

    4.几何形构图
    主体组合成一些几何形状,形成稳固的画面,最常见的三角形构图以3个视觉中心为景物的主要位置,有时是以三点成一面的几何形来安排景物的位置,形成一个稳定的三角形。

    这种三角形可以是正三角形,也可以是斜三角形或倒三角形。其中斜三角形较为常用,也较为灵活,三角形构图还具有稳定、均衡、灵活等特点。

    花卉摄影技巧,你知道多少?-10.jpeg

    5.框架式构图
    选择框架式前景将观众的视线引向框架内的景物,突出主体,将主体影像包围起来,形成一种框架以营造一种神秘气氛。

    框架式构图有助于将主体影像与风景融为一体,赋予照片更多的视觉冲击。大家应留心诠释主体影像的不同方式,多花时间观察拍摄主体,绕拍摄主体多走走,当拍摄者从不同视角审视拍摄主体时,就会发现可供拍摄的角度其实有很多。

    花卉摄影技巧,你知道多少?-11.jpeg

    6.散漫式构图
    散漫式构图显示出某种随意性,将看似过多的主体随意地放在画面中的任何地方,给人一种散乱而漫不经心的感觉,但是仔细端详画面,会发现乱中呈现出一种规律。

    花卉摄影技巧,你知道多少?-12.jpeg

    以上构图方式都是属于封闭式构图。首先封闭式构图对主体的处理,一般会将主体安排在几何形中心或趣味中心,形成一种完整感,全景也是如此,即使是拍特写近景也讲究画面结构的完整性;其次封闭式构图十分讲究构图均衡。

    比如,拍摄花朵,花朵处在画面的一侧,另一侧就有一定的视觉形象造成均衡格局,也可以将花朵安排在画面四周任何一角,但其视线是向心的,必须在视线前方留有适当空间。

    封闭式构图的这些特点,反映了传统的构图规律,讲究画面完整性。比如,拍花朵的特写镜头,虽然是表现花朵的局部,也应该注意画面结构的完整性。

    7.开放式构图
    而开放式构图不受这种限制,经常处于完整与不完整性变化之中,不将观众的视觉感受局限在可视的画框之内,而是有意引导观众突破画框,产生更广泛的画外空间的联想。如下图所示,拍摄半朵花,采用就是开放式构图。

    花卉摄影技巧,你知道多少?-13.jpeg







    上一篇:详解风光摄影的构图法则
    下一篇:结合笔墨诗意 揭秘摄影中构图的奥秘



    灵活就业-技能/资源雇佣平台
    

    kepu 实习影

    影值: 4 银子: 0

    2021-4-22 18:35:13 | 显示全部 返回 收藏收藏

    写的真的很不错



    灵活就业-技能/资源雇佣平台
    您需要登录后才可以回帖 登录 | 注册

    
    

    主页

    需求大厅

    互动

    技能物语

    教程/投稿

    更多+

    
    发帖
    快速回复 返回顶部 返回列表